Grade 2 Listed building interior and exterior renovation
The Watton
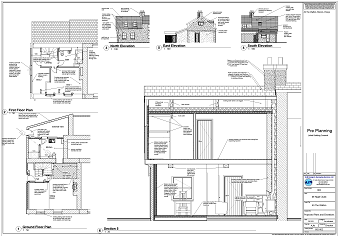
As with all listed buildings, there are strict guidelines to follow, working with the conservation officers and still designing to fit the client's brief. There is quite often a number of issues when working with a property of this age, as you will see below there were issues with the chimney.
Grade II listed building before renovation


Concept for interior


Original oak wooden flooring and tiles, due to the property being a listed building we kept the original flooring, polished the oak flooring and rejuvenated the tiling.

Original Window

New Window

A new roof was required for the property below are some photographs showing the before and after. Below you can also see the render was also repainted to match the criteria for the national parks.


Another major issue for the property was the state of the chimneys as the original chimneys were falling apart and barely being held together. So the chimneys were replaced as you can see below.
