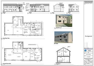
Converting the garage into living space and extending it above to create another bedroom
Sunnybank
The existing garage is going to be changed to a living space and extended to create another storey above. Where the existing garage door is would be a large glass window.

Drawings and concepts for the conversion and extension


Existing property on site
