Interior re-design and renovation
Old shop and Post Office
This is a building full of character and to be although vastly upgraded on the interior the essence of the building is unchanged. With original features and windows retained
Photographs of the site before the refurbishment

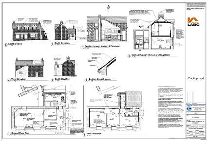
Plans and elevations for the design

The original sash windows had to be retained as a planning condition and to upgrade them we inserted Slimlite double glazed panes into the existing modifying the glazing bars for the deeper glass . The fact that the sashes are double glazed cannot be seen


You can see the progress of the re-roofing


The flooring was the original oak flooring which was stained and polished.

Photographs of the finished kitchen and the upstairs hall.
